Industrial Meets Sleek

THE NEW MANUFACTURING FACILITY OF ACCURATIV (M, SDN BHD BY HB ONG ARCHITECT IS A VIBRANT INTERPLAY OF SOLID AND VOID; LIGHT AND SHADOW TO CREATE A DYNAMIC EFFECT TO ENHANCE THE EXISTING STREETSCAPE.
TEXT BY THE ARCHITECTS
Cafeteria pantry design with the corporate colour as design essence
Front view overlooking the office block

AN EYE-CATCHING LANDMARK

Located in an industrial area of Kapar in Klang, Selangor, the new manufacturing facility of Accurativ (M) Sdn Bhd has become an eye-catching landmark around that region. The vibrant interplay of solid and void; light and shadow on the front façade was intended to create a dynamic effect to enhance the existing streetscape.

A NEW IMAGE THROUGH ARCHITECTURAL DESIGN

The design brief called for a new image of a chemical manufacturing facility which consists of a few main spaces: a warehouse area for production and storage, a chemical laboratory, an administration and offices area, meeting rooms, a cafeteria, and a lounge area. Being a chemical company with more than 20 years of experience in the chemicals for the latex-related industries, the clients decided to look for an architect to design this new facility to strengthen their brand identity. They desire to create a different environment that can achieve two main objectives:

i) To generate a comfortable and welcoming environment for potential customers, especially the ones from over seas, and
ii) To create a conducive environment for the employees. To accomplish that, the architect and the clients went on an interesting journey of design exploration together, brainstorming ways to break away from the typical impression of a manufacturing facility that could be dull and characterless due to its functional and utilitarian nature.

Courtyard as resting and communal area for both employees and visitors

COURTYARD AS THE HEART OF THE BUILDING

This new manufacturing facility of Accurativ (M) Sdn Bhd is situated in an industrial zone with no interesting views around that region. Similar streetscapes with typical factories or warehouse façades, repeating noises of machinery, and minimal and inaccessible landscapes formed the “neighbourhood” scenery of the site. The surrounding environment appears to be uninteresting to visitors and uninspiring to the workers. In light of that, a common architectural design element in tropical buildings yet unconventional to industrial buildings courtyard design, was introduced to counter the issues observed.

The courtyard design successfully created an internal environment with its micro-climate. Not only that it brings a positive impact on the environment, but it also becomes a pleasing view that brings a sense of serenity to the building users. The ultimate goal is to create a sense of welcome to visiting customers while generating a conducive working environment that is healthy and inspiring for the employees. Therefore, this courtyard has become the heart of this manufacturing facility and was designed to be accessed through main spaces such as the office area, chemical laboratory, and warehouse area; where all the main activities are being carried out.

The plant selection was a result of a collective idea from the Architect, Landscape Architect, and clients. Tropical plants of easy maintenance such as Frangipani trees and Fig trees had been planted together with some low bushes, to create a hierarchy in the garden. Hanging creepers were also planted along with the balcony of the first-floor office, to allow a visual connection to the courtyard from the first-floor level. This courtyard space could be an extended outdoor area for office functions and gatherings, etc., or act as a private resting area for the workers. They can enjoy resting under the shady fig trees, or refresh their mind through the natural aromatherapy of Frangipani flowers which often release fragrances in the evening.

In terms of spatial planning, the courtyard also acts as a transition space between the office area and the warehouse area, making it an interesting journey as one moves from one space to another. The beauty of this greenery is even captured and magnified at the entrance lobby, by framing the view using full-height glazing at the entrance lobby. At a glance, it appeared to be a picture of a beautiful garden, creating a warm and welcoming feeling for the visitors the moment they entered the building.

Fenestration design on east and west facade, capturing indirect sunlight into the internal space and allowing natural ventilation at lower

SUSTAINABLE DESIGN STRATEGIES

Sustainability is another emphasis of this building design. Green spaces, solar-responsive building orientation, natural daylighting, and natural ventilation are the few passive design strategies adopted to create a sustainable manufacturing facility. The office block with the cafeteria area was designed to face south to allow maximum glazing and windows for natural daylight, yet minimize heat gain. For the warehouse façade that faces east and west, only a few recessed and tall windows were provided to allow deep natural daylight. A layered roof with skylights design was also incorporated to achieve the same intention. Besides that, the roof was designed to induce stack e-ect ventilation which improves the thermal comfort of the interior. The central courtyard on the ground floor and the balcony garden on the first floor also contributed to the passive cooling of the overall building.

UNIQUE BRAND IDENTITY THROUGH INTERIOR DESIGN

Interior design is another important aspect of this building design as a means to enhance the brand identity. Dark grey was selected as the main colour of this building to create a stronger identity and personality. It also contrasts with the corporate colours of the company namely orange (the main colour), and red (the secondary colour). These two colours are used sparingly on the office block interior to create emphasis on certain areas of different functions. Last but not least, a touch of nature was also introduced in certain areas such as the timber flooring at the balcony area and seating below the main central staircase on the ground floor, to create warmth and additional connection to nature. Together with the uniquely custom-designed reception counter, this dynamic play of colour, texture, and design magnificently portrayed a creative and energetic vibe, strengthening the brand identity of Accurativ (M) Sdn Bhd.

Customised seating and planter box below the main staircase
General meeting room at ground floor with the view towards the courtyard

A NEW PERCEPTION OF THE INDUSTRIAL BUILDING

This new manufacturing facility of Accurativ (M) Sdn Bhd challenges the common perception of an industrial building that often appears to be too functional and uninspiring in design. It proves that a generic manufacturing facility can also be designed as a distinctive architecture when the relationship between the building program, the users, and the environment is well examined. In short, this is an industrial architecture that responds to the climate and environment, while offering a physical environment that is conducive to its users.

Customised reception counter with ba!e ceiling design draws the vista towards the courtyard behind
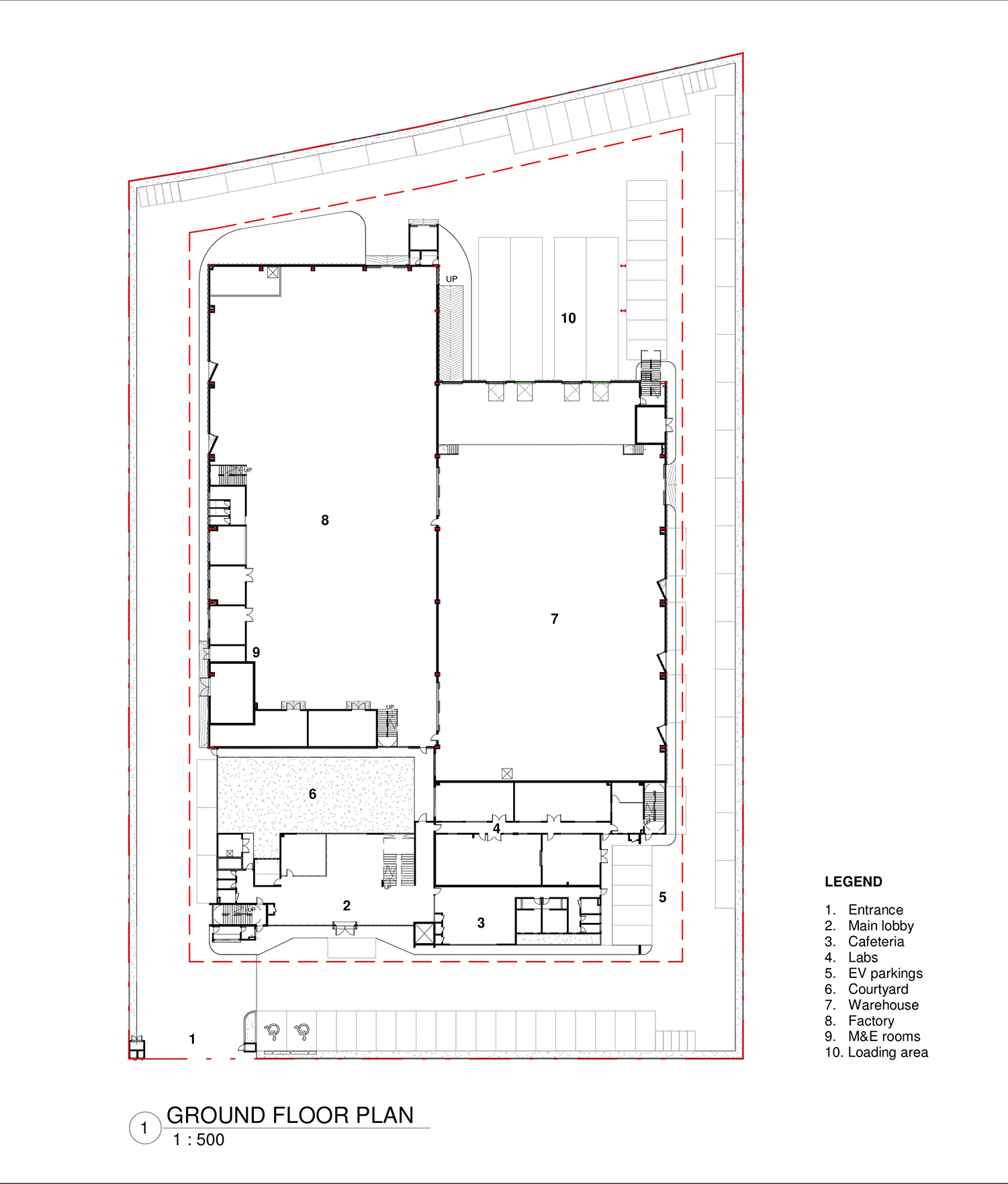
Ground floor plan
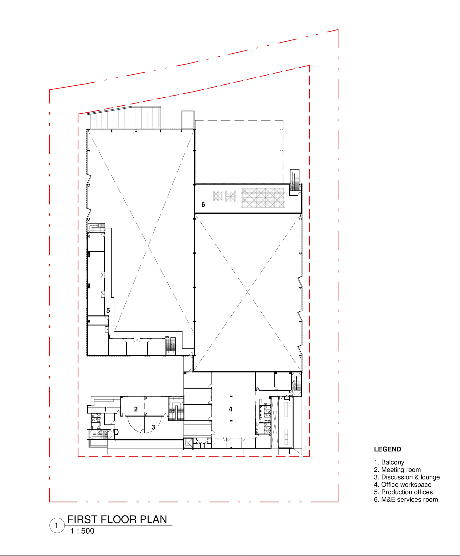
First Floor Plan
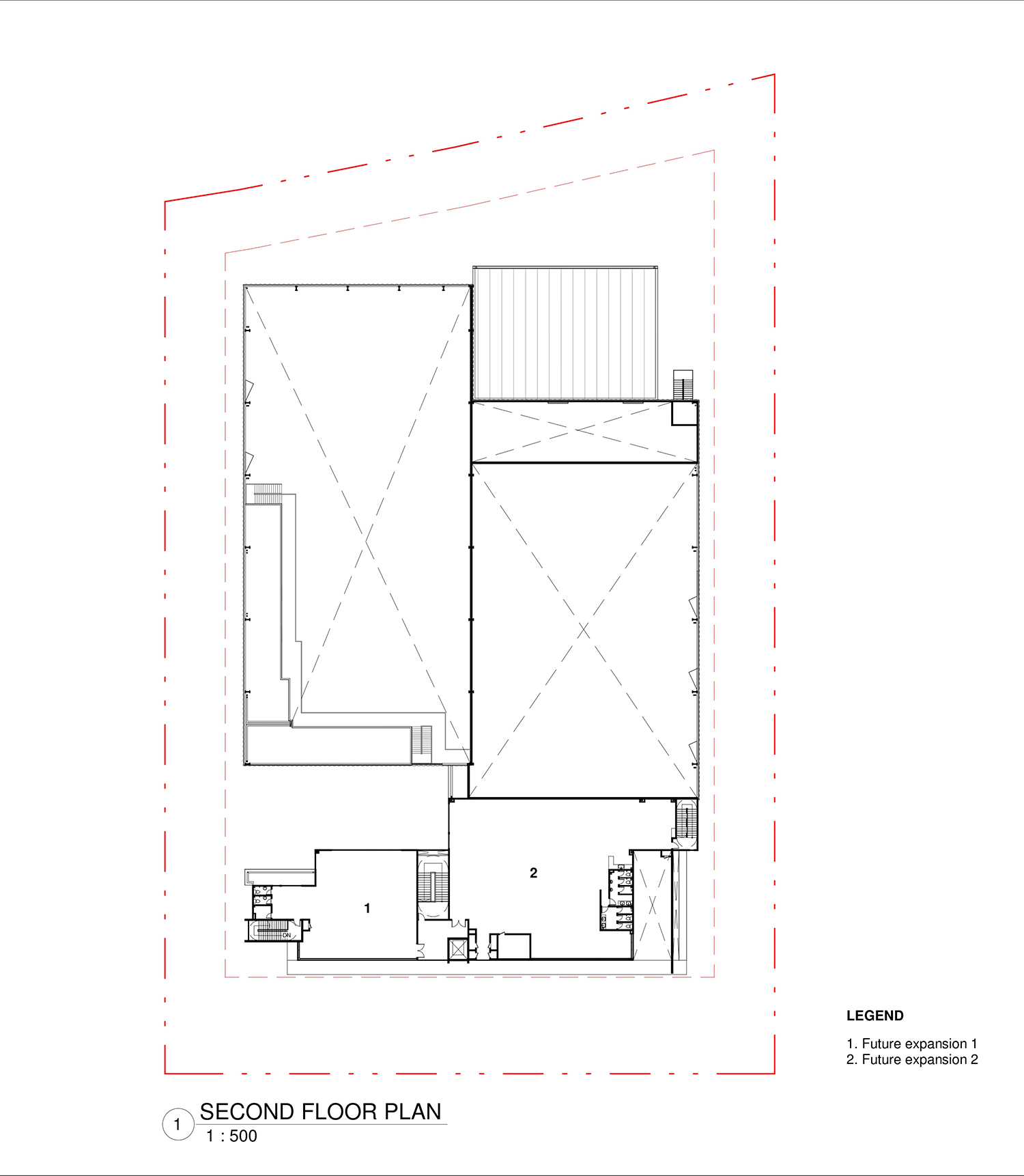
Second Floor Plan

FEATURES

LOCATION: Kapar, Klang, Selangor

CLIENT: Accurativ (M) Sdn. Bhd.

PRINCIPAL USE: Industrial

ARCHITECT: HB Ong Architect (HBOA)

PROJECT PRINCIPAL: Ar. Ong Hun Boon

PROJECT TEAM: Mr. Yu Cher Tung

DESIGN PERIOD: 12 months

CONSTRUCTION PERIOD: 30 months

DATE OF COMPLETION: 20.10.2021 (CCC)

SITE AREA: 2.2 acre

CONSTRUCTION COMPANY: C.T. Engineering & Construction Sdn Bhd (Main Builder Works), Mega Max Renovation Sdn Bhd (Interior Fit Works)

CIVIL ENGINEER: JEN Jurunding

M&E ENGINEER: Durianê Consult

QUANTITY SURVEYOR: DK-QS Sdn Bhd

INTERIOR DESIGNER: HB Ong Architect’s team

LANDSCAPING: O&E Associates Sdn Bhd

PHOTOGRAPHER: BricksBegin

RELATED ARTICLES