Nestled in a farm-like setting at the fringe of the city, the Ketitir House provides a shell for the occupants to fit-out and develop edible gardens reminiscing the site’s agricultural past.
The project reinforces a participatory relationship between Client, Architect and Contractor, by allowing the small budget to act as the catalyst for creative and quality solutions.Empowered by the Architect’s guidance, the Client was actively involved in the design development and decision-making for construction, interior fittings and landscaping of the house.
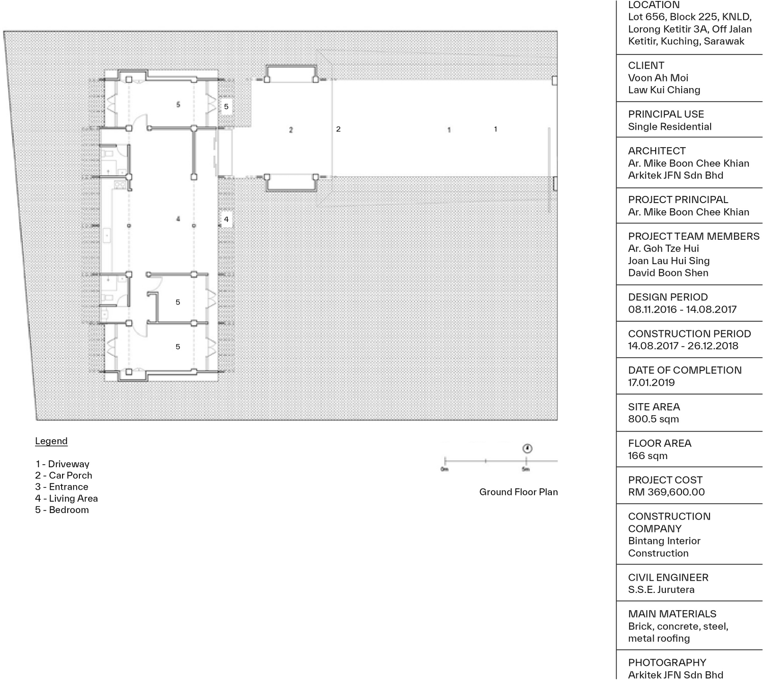
The design delivers a simple single-storey linear plan with flexibility to facilitate future changes.
The building sits on an elevated 7m x 18m platform with the bedrooms at both ends, separated by the central living / dining / kitchen spaces.Optimised for cross ventilation, the building platform is oriented with its long elevations facing Northeast and Southeast.The wide roof eaves provide protection from the elements, while the angular profiled metal louvre screens allow for continuous natural ventilation, regardless of the weather conditions.
Run-off from the metal roof is redirected into large earthen jars with the use of rain chains, whereby the harvested rainwater is used for watering the edible garden cultivated by the Client as part of their dynamic landscaping.