One for All

NOVUS BUSINESS PARK BY PING NG ARCHITECT IS AN INTEGRATION OF MULTI!FUNCTIONAL SPACES WITH A MULTI!STOREY DESIGN TO FULFIL VARIOUS POSSIBILITIES OF ANY BUSINESS.
TEXT BY, ZHAFRAN TAN, PING NG ARCHITECT
Glass facade details

The project is essentially an integration of multi-functional spaces with a multi-storey design to fulfil various possibilities of any business. This is versatility at its finest. This is Novus. Fourteen units of Semi-detached factories on a 4-acre lot, planned simply by facing a single service road that ends with a cul-de-sac, we ensure the entrance to the development is visible from afar and that the collective facades serve like simplified and crystallised beacons even during the daytime.

Novus Business Park Glenmarie is located on freehold land within the Hicom-Glenmarie Industrial Park, an established industrial enclave of Glenmarie comprising mainly detached factories in operation by various multi-national and public listed companies to date. Its excellent connectivity to 8 major expressways and proximity to established townships and amenities of Subang Jaya, Shah Alam, Klang and Petaling Jaya, with ease of workforce recruitment, have contributed to its status as a premium address for industrial/commercial use.

Panoramic view

The project site is easily accessible from the major spine road of Glenmarie, Persiaran Kerjaya, that leads to Jalan Pemaju U1/15. Its northern boundary faces the New Klang Valley Expressway (NKVE), offering excellent visibility and marketing opportunities. With both the western and southern boundaries next to existing factories and adjacent to the eastern boundary is the KTM rail line, Novus offers a single point of entry and exit via its 66″ access road, further enhancing security to its low-density development.

Adopting an ‘All-In-One’ use concept with exceptional innovation and high specifications, the factories offer flexible spaces to its end-users to meet their business needs by housing multiple functions under one roof corporate offices, showrooms and a warehouse. From full-height glass façades to high ceilings and open floor layouts, we envisaged a break in the industrial building typology by infusing modern contemporary architecture without compromising functionality.

Site plan

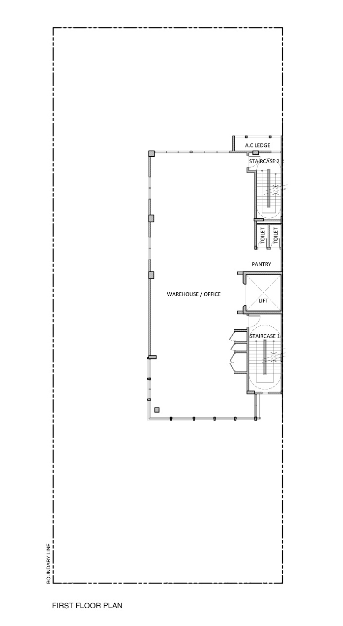
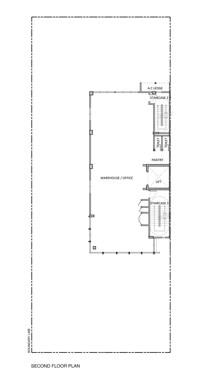
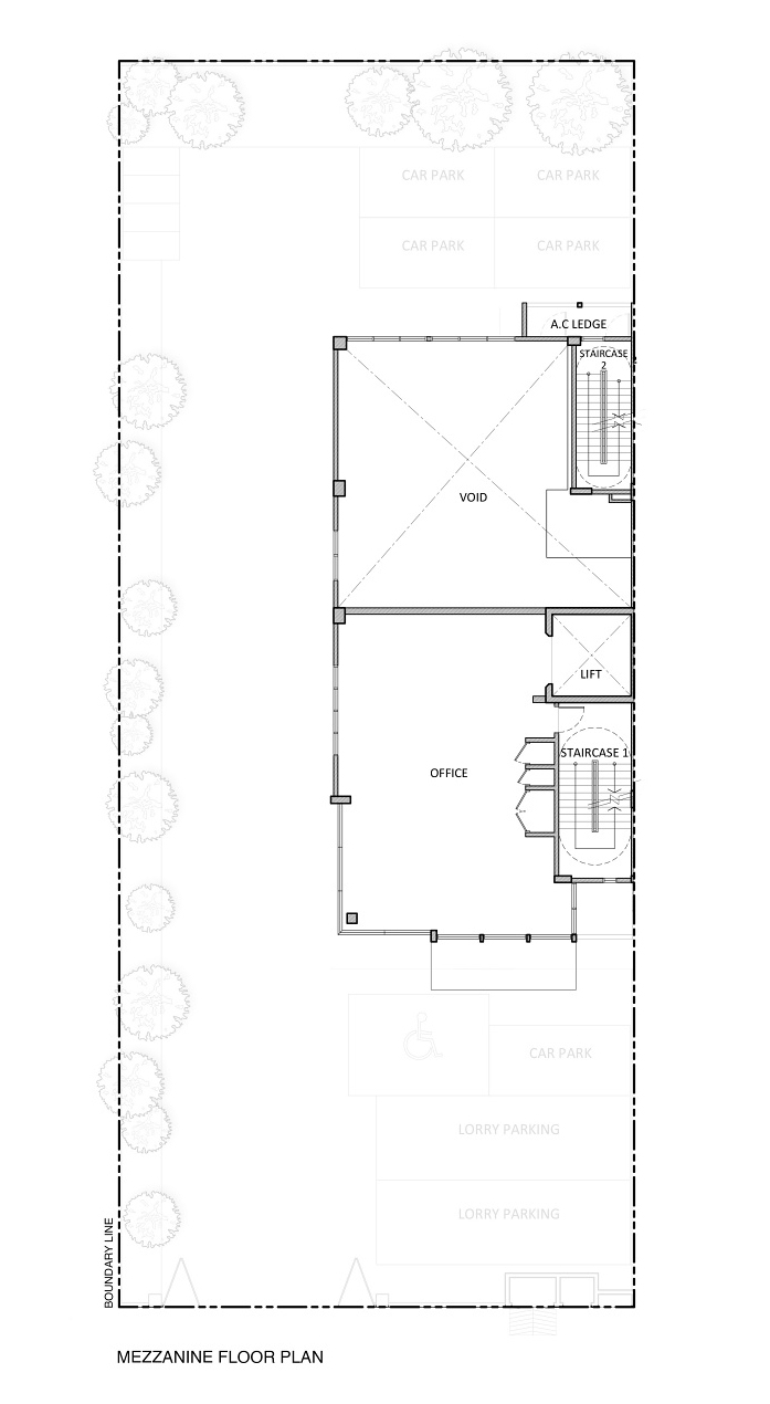
The Ground Floor contains manufacturing spaces of 8.6 metres in height that allow most machinery for small/medium industries. Adjacent to this volume is a mezzanine floor perfect for the administration office. Above these mezzanines are three floors with a significant area for warehousing, office, or even any smaller manufacturing, as every level’s concrete floors are designed for heavy loading.

As the major part of our ‘blurring the lines’ between manufacturing and corporate characteristics for the buildings, the design narration ultimately arrived at ‘imposing forms of full-height glass façade’. We achieved this by articulating modern building techniques and materials with innovative detailing.

Strong angular lines form the overall glass facade punctuated in equal distances by straight, horizontal aluminium fins that follow the angular shape of the glass panel installations externally, hiding the rigidity of the internal mullions. The fins provide an added texture and play of shadows on the front façade.

Typical frontage

Selected glass panels are applied with frosted finish films to give shade internally and enable added depth to the overall elevation. On the ground floor, large glass walls wrapped the foyer to the factory to achieve the floating expression of the upper floors.

A minimalist approach to the external wall façade with a combination of window openings and a warm grey paint finish intersected with black groove lines that imitate the stacked squares of the front glass panels. Large 2-meter-high windows permeate the side elevation in no discernible pattern. This creates different visual experiences internally from each floor. The careful positioning of the windows takes consideration of providing as much internal wall space for storing and warehousing functions without compromising on the comfort of end-users.

A strong and modern warm grey façade dominated by the brise soleil design at the air-con ledge makes up the spine of the rear facade design. The horizontal concrete fins and the window to the staircase are arranged in a chequered pattern on cantilevered ledges to give focal attention to the rest of the façade. The fins function as a multi-storey brise soleil, and it is envisaged to reduce the amount of heat going into the staircase and the internal areas. The Project was completed in October 2023 and is now being utilised by various businesses.

Lot 9!13
Sectional perspective
Aerial view from NKVE

FEATURES

LOCATION: HICOM-Glenmarie Business Park, Shah Alam

CLIENT: Novus Development Sdn Bhd

PRINCIPAL USE: Manufacturing / Warehouse

ARCHITECT: Ping Ng Architect

PROJECT PRINCIPAL: Ar. Ng Ping Ping

PROJECT TEAM MEMBER: Zhafran Tan

DESIGN PERIOD: 2018–2019

CONSTRUCTION PERIOD: June 2019 – October 2023

DATE OF COMPLETION: October 2023

SITE AREA: 16,187 sqm

FLOOR AREA: 12,532 sqm

PROJECT COST: RM26,045,708.00

CONSTRUCTION COMPANY: Wong Brother’s Building Construction

CIVIL ENGINEER: Truepro Consult Sdn Bhd

M&E ENGINEER: Perunding JC Yeo Sdn Bhd

QUANTITY SURVEYOR: Kumpulan Sepakat Konsult

LANDSCAPING: Silver Fauna Sdn Bhd

GLASS & ALUMINIUM CONTRACTOR: HITTI Aluminium Sdn Bhd

PHOTOGRAPHER: Act Studio Photography

RELATED ARTICLES