PASSIVE PROGRESSIVE

THE TWO TUBES HOUSE IS KKNG ARCHITECT’S ENDEAVOUR AT REPROGRAMING A MID-1970S
BUNGALOW INTO A PASSIVE-THINKING MACHINE.
TEXT BY THE ARCHITECT
3-tier Y-Angled fenestrations to the distorted front part of the two tubes

The mid-1970s 1½ storey bungalow calls for an increase in floor space and program reorganisation to cater for the family of five’s current lifestyle.The original structure was formed disproportionately, giving room and opportunity for new insertions to balance things up.The house was closed up with limited view and access to the surrounding gardens rendering it wasteful.It was stuffy and introverted, closed from the world.However, the client was adamant about retaining the original granite-clad feature wall in the Living, which we could not agree more.

The site is located along the mid-point of a slope, thus can consider itself elevated with an attractive panorama of clusters of bungalows towards the rear which is geographically a valley, sunken way below our building platform.Because of that, the house is exposed to a good amount of free-flowing breeze, which was unfortunately not harvested.

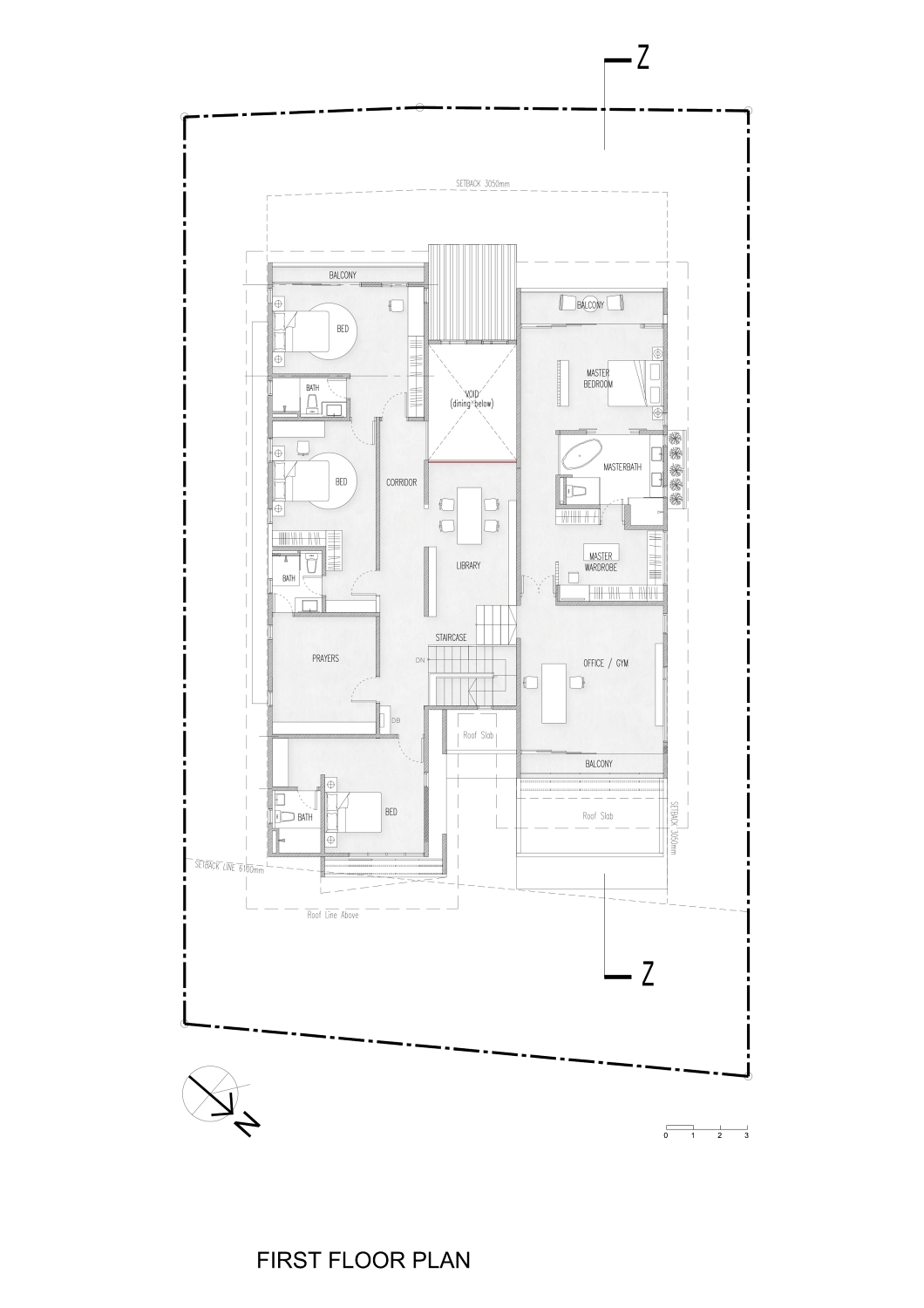
If architecture is to be more than simply a shelter from the elements, it must be infused and inspired with meaning.This can be achieved by designing the house to operate as a ‘passive-thinking machine’.The idea of machine embodied in architecture where dwellings are constructions of memorable humanistic machines tell us the time of our habits as mentioned by Marco Frascari.This idea inspired the allotment of two distinct tubes flanking the existing staircase, bringing about two distinctive zones.

Rear End of the 2-Tubes addressing the rear garden

The first tube will utilise and modify existing programs and structures. It is lengthened to fulfil additional floor area towards the rear end, cantilevered over the garden and overlooking the cluster of neighbouring bungalows way below eye level.

The second tube is a new block, carefully elevated above the existing Living and granite-clad retro feature wall. This new block will be inserted with completely new programs as a self-contained unit exclusive to the owners.A new pool is introduced below as a focal point hugged by the dining and the living. This pool is semi-outdoor and located towards the rear garden, uplifting the rear garden and making it fully functional, binding programs together.

Lining up the Living Room with the Pool and the Car Porch allows the ground floor to be unobstructed along this axis, so cross ventilation happens without interruption.
The narrow slit of a window in the Living facing the Car Porch is deliberately made smaller than the full-height folding doors between the Living/Pool, by implementing the Bernoulli Principle to boost an undeniably comfortable flow of air.

Front Elevation

The AV Room, an area to catch up on sports, games and movies, is positioned in the corner of the front of the house. Linked as an annexe to the Guest Room, its function doubles as a lounge.Facing the front garden which is also a basketball court, the AV Room is a place to chill out, complete with a full-height sliding window where interactions can be carried out whether there is a game or a party.

To cap off the front ends of these two conceptual tubes facing the main street, the Y angles lie vertically to form a fenestration.The fenestration is staggered in three tiers to form a feature, where the lowest tier is fixed and the other two upper tiers are adjustable ergonomically by way of hydraulic arms.While this feature resembles a breathing element through a mechanistic approach, it also couples as a security grille.To the rear end, it was left as mere balconies with full-length sliding doors to allow the rear panorama to be fully exploited.

With all the endeavours to shift and allow the house to be fully operable in terms of programs through (re)positioning, unused spaces or dead corners are minimised.Further transformation of the house into a passive machine for it to breathe and to be as permeable as it can be between the two frontages, experiencing cross ventilation to its fullest potential, and bringing in the surrounding nature and light complete the intervention.

The new block spans above the pool, the living and the car porch
Frontage depicting the two tubes with machinist steel fenestrations
Staircase made more transparent and lighter in line with the house’s spaciousness
The view from the first-floor loft library-study is not taken for granted
A higher living room to retain the retro granite feature wall. Narrow lateral window to the right, full sliding doors towards the pool enables a Bernoulli effect for cross ventilation

FEATURES

LOCATION: Kuala Lumpur

PRINCIPAL USE: Residential

ARCHITECT: KKNG Architect

PROJECT PRINCIPAL: Ar. Ng Khuen Keat

PROJECT TEAM MEMBERS: Rachel Lo, Eunice Lim, Shafiq Dahlan, Ming Tiek

DESIGN PERIOD: 8 months

CONSTRUCTION PERIOD: 12 months

DATE OF COMPLETION: March 2023

SITE AREA: 800 sqm

FLOOR AREA: 550 sqm

C&S ENGINEER: Equal Force Consultant Sdn Bhd

LIGHTING / LANDSCAPING / PHOTOGRAPHER: KKNG Architect

RELATED ARTICLES