LESS IS MORE

MICROLIVING CATALOG BY AR DANIEL TIONG WEI WEN IS AN EXPERIMENTAL PROJECT LOCATED IN KUALA
LUMPUR THAT AIMS TO RETHINK THE SPATIAL CONFIGURATION IN CONVENTIONAL SMALL APARTMENTS.
TEXT BY THE ARCHITECT
Foyer threshold as an entrance statement into the garden

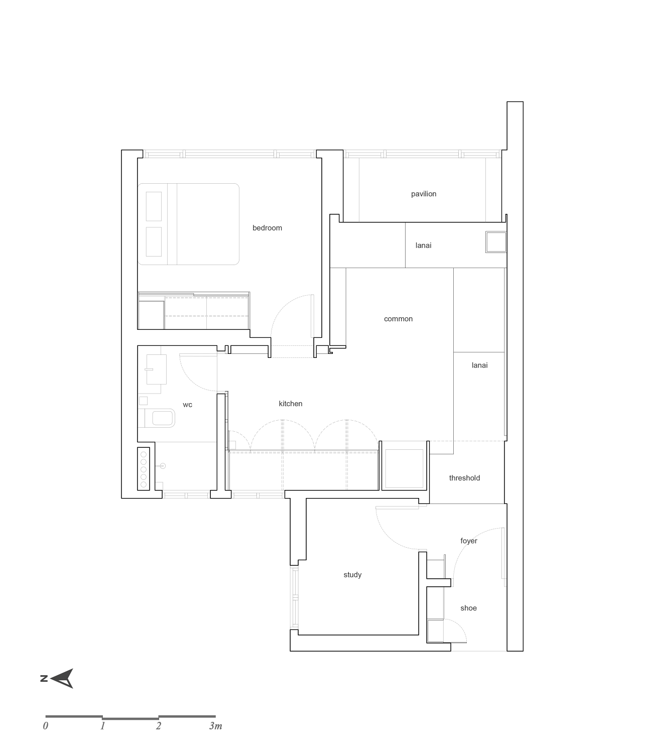
The current context of small apartment units in Kuala Lumpur is limited between 550sqftto 600sqft, and this typology has existed for decades, targeted for single bachelor or newlywed couples, which limits the adaptability of the space for the increase in household members; once a family grows in capacity, they will have to find a bigger space to accommodate their living needs.

Microliving Catalog is an experimental project located in Kuala Lumpur that aims to rethink the spatial configuration in conventional small apartments by using affordable local material plywood and raised platforms to allow for more spacious and humane micro living.Small space is often squeezed with tons of built-in cabinets to maximise the storage capacity and placement of furniture, as such the result is often a space which creates more issues when a space needs to accommodate for casual gatherings or even expanding small family. Most importantly, the very essence of ‘living’ is no longer enjoyable as there is more emphasis on efficiency over the emotional aspect of a home.As an Architect/designer/client myself, I wanted the place to be closer to what I felt when I was back at my home in Sibu, it is a place where I could hang around, take an afternoon nap on the floor and have a morning chat with my parents along the verandah; thus, the home should be a place which is not bound by ‘efficiency’ and depending on furniture to define a space, but rather a place designed to be closely associated with one’s feeling and memories.

A courtyard-like experience

The main approach was to eliminate the need for all major furniture such as dining table sets, sofas and tv consoles to be replaced with a single continuous raised platform with the intention to bring all interactions closer to floor level; reflecting on my own/ Malaysian’s childhood memory of living-playing-reading-sleeping on the floor of a verandah, an area which activities are cooling and promotes intimacy and interaction among family members.With the introduction of the continuous platform, each corner of the space becomes usable and flexible for any form of daily activities. There is no fixed demarcation of the function as the whole space is fluid in access and use.

The centre courtyard-like space is an ambiguous open atmosphere of indoor-outdoor experience.The materiality of plywood serves as the binding element to integrate seating-table-walkway-steps into a singular language. This allows for expanded flexibility for more usage and adaptability, either for a growing family or hosting for a large group of people, which is impossible in conventional small apartments.From the continuous platform, one is able to walk up onto the window deck or become a small two-tier theatre seating.

Matt black countertop framing the entire kitchen top

Walking up the platform is the conventional bay window with Air conditioning services underneath, which turned into a floating pavilion framing the full-height view of the cityscape.All plywood edges are extended by 25mm to eliminate odd joinery detail while expressing the true thickness of plywood and the plywood also helps to insulate the noise and vibration from the air conditioning units.All lighting is exposed and soffit mounted to save cost from expensive plaster ceilings, and high-level box features made of cheap plywood are designed as storage for utility items.

Each interior elevation is extended through the play of depth such as the extension of timber framing, linear decking-backrest, and mirror wall reflection. These elevations frame different functions-meaning such as the entrance frame: a traditional Chinese archway marked as entrance, bay window frame: floating pavilion, raised platform: pathway-seating in the garden, and mirror wall in the kitchen – spatial continuity.

Cantilever boxes above as storage
In conclusion, this experimental project is an ongoing project as there are still many alterations work to be done as living needs to evolve from time to time; with “micro-living”, and an extremely tight budget, this is a project to express an alternative way to design for micro-living typology and rethink the way we would like to live inside a home. It is by no means an ultimate solution, but a result of designing what I would think is ideal and more humane for modern living.

FEATURES

LOCATION: Selangor

CLIENT: Ar. Daniel Tiong Wei Wen

PRINCIPAL USE: Residential

ARCHITECT: Ar. Daniel Tiong Wei Wen

DESIGN PERIOD: 2021–2022

CONSTRUCTION PERIOD: April 2022

DATE OF COMPLETION: July 2022

SITE AREA: 54 sqm

FLOOR AREA: 54 sqm

MAIN MATERIALS: Plywood

PHOTOGRAPHER: Ar. Daniel Tiong Wei Wen

RELATED ARTICLES