Site Location
3° 15’45.9″N, 101 °41 ‘56.4″E
Site Topography
High altitude, hilltop, multi-levelled profile
Site Phenomenology
Surrounded by serene scenery, peacefully quiet,view of the Batu Caves
Site Context
Existing old mango tree and key lime tree
Design Brief
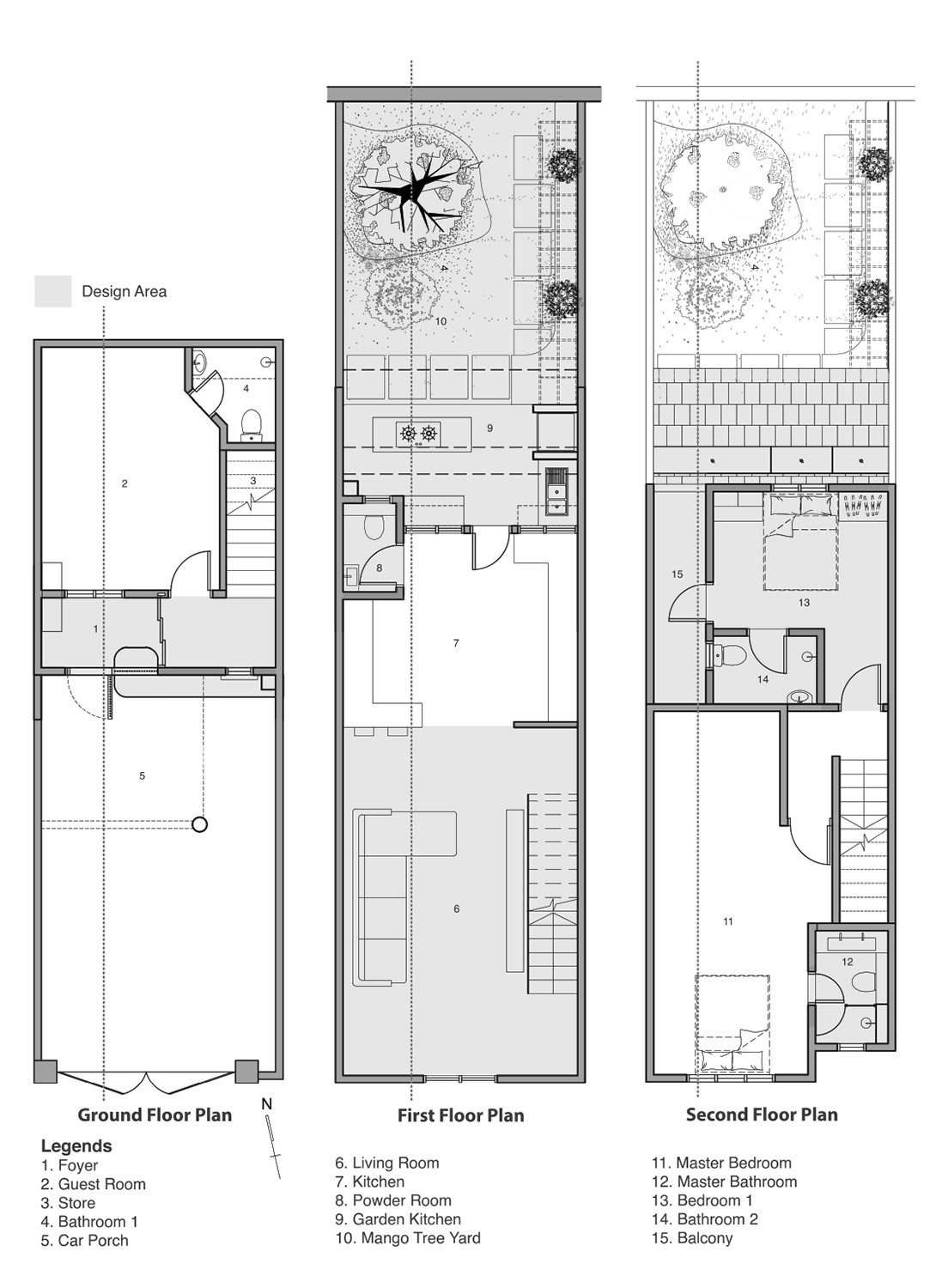
To enhance the interior experience, have an outdoor extensionconsisting a kitchen, preserve the mango tree, a shoe storage,a TV wall, and toilet renovation.
This project is very important to address the typical distasteful Malaysian house renovations, front or backyard extensions, where a lot of them are happening in a recurring pattern, but very seldom addressed architecturally and publicly.They are often deemed as a project scope too small, not interesting, fees too low, and turned down because architects no longer want to deal with the stress from the ignorant mentality of owners affixed with repetitive rejection of their good heart and design interventions.
We see, however, the way such smallness of the scope of the project with one principle – how you do anything is how you do everything.
Such a project of a small scale, if done well, is in the hope to shed light on Malaysian Architecture as an industry, to be able to impress upon like-minded, fellow Malaysians, and to inspire more built environments of various scales to push architecture forward that leads to a meaningful life.
This project covers different areas; the interior design with the backyard consisting of a shelter is also a landscape intervention – an extension that does not claim any enclosed spaces solely for personal gain but an outdoor space filled with the ecology of landscape, architecture, and neighbourhood.
A typical Malaysian house renovation and extension usually consist of indoor enclosed spaces for self-interest, built to the maximum square footage, and disregarding the quality of life such as natural daylighting and ventilation for the comfort of living.What has come before them on site (foliage and animals) as a whole, the entire ecosystem is overlooked.
We kept the existing foliage on site, designing the space with the backyard garden in mind and allowing proposed spaces such as al fresco seating, the garden kitchen, and even the interior to have a chance to interact with the garden and experience with the sense of place.The garden kitchen acts as part of the meaningful connection between the user, mother nature, and a “sense” we called home.All activities are designed to surround the existing foliage.
The idea of regionalism architecture sparked when the then client approached us for an outdoor extension with the existing mango tree on site to be preserved, and requested a new TV wall design, toilet renovation, and a place for shoe storage.However, the lack of architectural knowledge of the client led to a rather simple, less ambitious brief that can accept the typical way of renovation provided things being done are not “looking too bad”.We took the challenge and made a proposal comprising a statement on Malaysian architecture and a rather regional approach to architecture.We suggested ventilating the guest room with an entrance with a foyer, a double-sided TV cabinet opposite the intended TV wall, and an outdoor garden kitchen with tropical architectural approaches.
The owner accepted the idea.
The tropical Malaysian architecture intervention range from creating spaces to let users appreciate nature in various forms – natural daylighting, greeneries, natural ventilation, a structure that invites natural habitats, creating a double-roof design that allows ample daylighting to penetrate through, to the use of concrete bench stretching from the garden kitchen to the end of the backyard; facing the existing mango tree.
With the undemanding brief from the client and the over-demanding concern over the limited project budget, a project of the same nature would usually be awarded to a contractor who simply puts up the same template of construction over one house after another.
The only way to design within the given very limited budget is to put more effort into the detailing, especially things and spaces that will be often used and experienced in everyday life.
The design method for the regional architectural approach of the backyard extension requires a few steps:
1. Defining limitation of architectural tools – direction of physical attributes of intended activity.
2. Detail – the way material appears to the sense of touch and the way things are placed together or joined.
3. The facing or direction of intended activities.
The project retains two important trees – the mango tree and key lime tree – and the concrete seating and kitchen then encircles the two trees to facilitate living in proximity with Mother Nature.
For the interior design of internal spaces, much focus is put on ventilating the existing guest room, and making sense of the TV cabinet in reference to the character of the site.The design tools are defined as such:
1. Architectural physical elements and environmental effects, such as daylighting and ventilation.
2. Material effect and tangibility
3. Meaning and reading of architectural components and physical attributes.
By “concretising” an interior design that can reflect a deeper relationship of what is “there” at the site – a foyer, a TV cabinet with a mirror surface, a mango tree-garden kitchen, and toilets with tactile raw materials were proposed.
How does one implement Malaysian architecture in a house renovation?How can we improvise traditional Malaysian architecture to fit into the present context?
The design process that drives such motives involve an intensive and extensive research of the place, the site topography, and the site foliage and context to realise the spirit of the place is built upon serenity, mother nature, and a hilltop living that cannot escape its prominent site character.On-site pragmatics were investigated and observed for a change, such as a guestroom without direct ventilation, and the intended TV wall opposite a glass wall next to the staircase.
The double roof design with clay tiles and glass with an air gap in between envisages the modern version of tropical roof designs and invites ample daylighting and natural ventilation into the kitchen space underneath.The gap between the two layers roof allows natural ventilation to happen and passively cools down the space beneath, encouraging good airflow.
Compared to the traditional deep eaves roof design for hot and humid climates, the extra glass pieces floating above the clay tiles roof solve the problem of natural daylight insufficiency.