The big idea when it came to designing Toojou was to celebrate the local culture of Sabah while creating experiences and opportunities where travel meets social.We want to celebrate all things Sabah, incorporate it into the design concept and even services.Toojou celebrates localisation by creating opportunities for localised service employing locals and tour guides; incorporating the rich nature escapades, local arts and crafts, colours, materials and textures into the interior design.The final concept heavily revolved around adventure and Sabahan cultural references.
Toojou’s reception counter with recycled wooden planks at the front desk, while the reception backdrop used vintage Bakelite light switches and wooden panels to add to the sense of nostalgia.
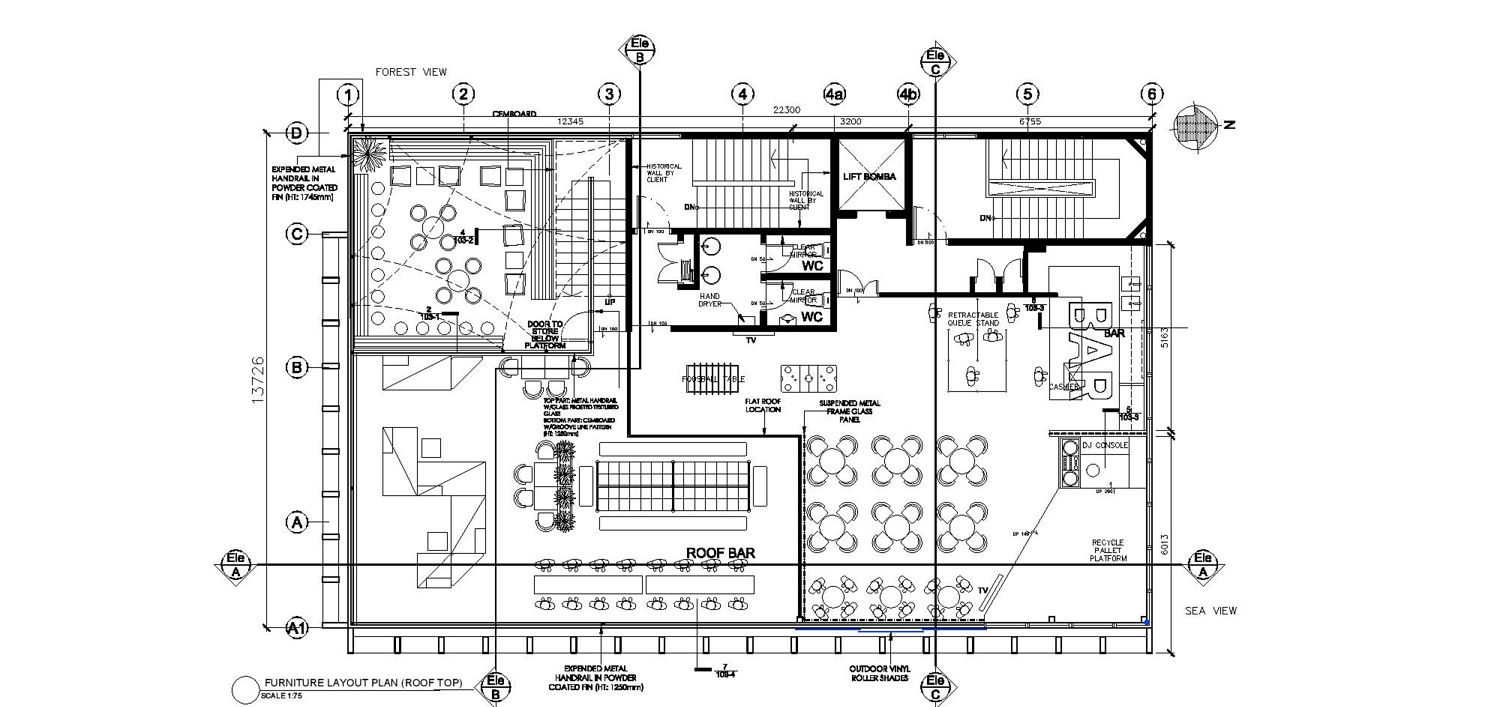
As designers, it was important to understand Toojou’s existing site and location to determine the factors that could make or break the project.One of Toojou’s selling points is its strategic location that sits along the main road, while offering views of both lush greenery as well as the Sabahan Township with the backdrop of the South China Sea.These views can be enjoyed from Toojou’s upper floors, while the lower floors make full use of the neighbouring forestry as a live, green backdrop.The façade of Toojou was also transformed from its previously aged and weathered walls to a large piece of artwork, with brightly painted grids and perforated metal screens that are strategically placed to camouflage some of the air conditioning units, creating a colourful multilayered egg-crate façade design.
With its position strategically facing the main road, Toojou’s façade has been designed as a large piece of artwork, with local artists commissioned to paint a large cultural-themed mural art spanning across the full height of the building.
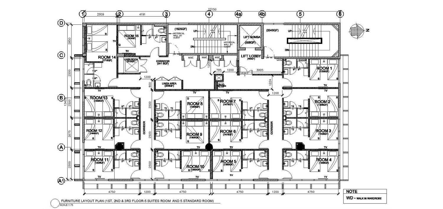
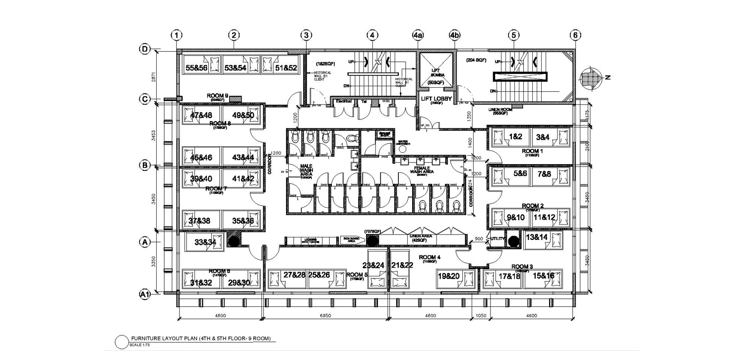
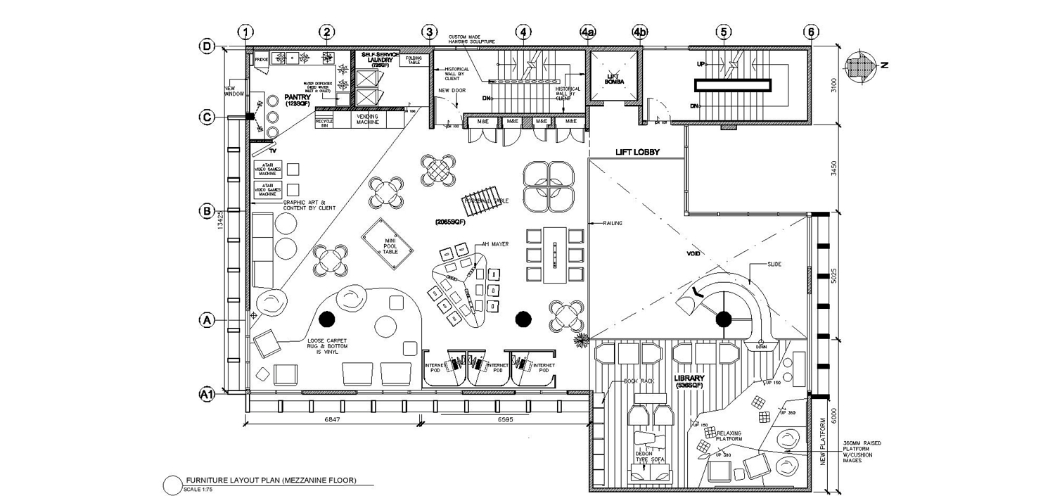
Century Hotel previously ran its business for a solid three decades before reaching its deteriorated state.Although the hotel was still open for business, its appeal amongst customers faded due to its run-down conditions and outdated style.The overall shell of the building was in relatively good condition, while certain architectural features showed promising potential for creating good interiors such as the full height glass windows and double-volumed space on the ground floor.To take full advantage of these features, Toojou’s design incorporated a new mezzanine floor to expand into a portion of the double-volumed space, which effectively provided more grounds for spatial planning while offering different experiences and views.The newly designed ground floor also allows one to immediately be transported to a bright, bold and cheerful atmosphere.There are many fun features incorporated into the design such as a ‘sampan’ seating at the waiting area and a large central slide that connects the mezzanine to the ground floor.A clever play of words can be seen implemented on the wall using coloured LED lights, while colourful graphics dressed the existing central column, transforming this once pale and outdated space into a fun and colourful environment.Beautiful pendant lights were designed to gracefully hang down from the double volume ceiling to emphasize the beauty of the void and high ceiling.Taking full advantage of the inherited full-length windows, ample natural daylight could be brought in to fill the communal spaces, which in return allowed for further cost efficiency as fewer lights were needed to brighten the ground and mezzanine floors.